|
Серия 600.11
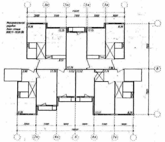
Наследница «Кораблей», выпускающаяся на 3-м ДСК, потеряла часть своей оригинальности, однако «изюминкой» серии стали окна в форме буквы «Г». После перестройки серию продолжали строить около 5-10 лет лишь чуть измененную, после чего стали появляться более усовершенствованные версии (например, без шестиугольных окон. Такие дома строились до последнего времени различными компаниями в разных районах города и имеют этажность до 10 и разные, иногда причудливые, расцветки. Примерно после 2015г. новых домов этой серии не строится. В годы расцвета индустриального домостроения объемы производства на ДСК-3 доходили до 400 тыс. кв. м в год. Квартиры в таких домах привлекают внимание вполне доступной ценой. Г-образные окна кухонь, ставшие своего рода "визитной карточкой" домов серии 600.11 вызывают у потенциальных новоселов не самые положительные ассоциации с "кораблем" и часто склоняют посетителей агентств недвижимости в пользу других серий. Представителям отделов продаж иногда приходится придумывать разные объяснения этого архитектурного штриха ("так прочнее", "так дешевле" и т. п.). Между тем, дело здесь вовсе не в дешевизне или прочности. Первоначально предполагалось, что при относительно небольшой площади кухни узкое окошко позволит более рационально разместить мебель и выиграть дополнительное пространство, а форма и размеры верхней форточки позволяли вписать в нее стандартный кондиционер советского производства. Правда, кондиционеры "Баку" в наших кухонных форточках как-то не прижились. И еще. Наружная стена из газобетона - не лучшее место для размещения навесных полок и шкафов: гвоздь в нее забивается легко, но так же без труда и вынимается. Поэтому серия 600.11 в версии 1999 года предусматривает отказ от г-образных окон, а сами лестничные площадки стали более просторными. Кухни стали больше, и необходимость жесткой экономии пространства отпала. Технология производства наружных стен из легкого и экологичного газобетона помогла ДСК-3 легко пережить ужесточившиеся нормы теплосбережения. В то время, когда другие производители начали применять утепляющие прослойки на основе минеральной ваты и полимеров, в строящихся домах серии 600.11 лишь немного (с 24 до 32 см) увеличили толщину наружных стен и стали применять тройное остекление. Впрочем, по утверждениям представителей технических служб, это была скорее психологическая мера, нежели насущная необходимость: 24 сантиметра газобетона "держат" тепло примерно так же, как 80 сантиметров кирпичной стены. Дома серии 600.11 хорошо зарекомендовали себя не только в Петербурге, но также в регионах с куда более суровым климатом, например, в Уренгое. Дома прежних версий серии 600.11 строились до недавнего времени. Причина интереса застройщиков к ним - чисто экономическая: панельный дом должен быть относительно недорогим. Например, номенклатура прежних "старых" вариантов предусматривает однокомнатные квартиры 37 кв. м, двухкомнатные - 55 кв. м, трехкомнатные - 66 и 72 кв.м. В новом - площадь однокомнатных квартир - 45 кв. м, двухкомнатных - 60 и 70 кв. м, метраж стандартной "трешки" - 82 кв. м. Нетрудно подсчитать, что при цене $ 400 за кв. м более просторная однокомнатная квартира получится дороже на $3200. Разница немаленькая, если учесть, что речь идет о жилье экономического класса. Стандартные квартиры в домах серии 600.11 не слишком различаются по планировкам. На каждом этаже - четыре квартиры (однокомнатная, двухкомнатная и две двусторонние трехкомнатные). В каждой квартире есть лоджия. Кухни везде одинаковы и почти правильной квадратной формы (8.26 кв. м в прежнем варианте, 10.84 - в модернизированном). К числу плюсов серии можно отнести "безопасную" конструкцию лестнично-лифтового узла: лестничная площадка не имеет темных закутков и хорошо просматривается. Характеристики серии 600.11:
Планировки стандартных секций Модификации этой серии:
1ЛГ-600.11, модификация, строившаяся в 1982-1989 годах. «Изюминкой» этой модификации стали Г-образные окна. Этой девятиэтажной (точнее, 3-10-этажной) серией чаще всего жёлтого цвета застраивался микрорайон около парка 300-летия Санкт-Петербурга, а также несколько кварталов в пригородах – Пушкине и Петродворце, и некоторые другие микрорайоны. Первый дом был построен в Сестрорецке в 1982г. В основном, все дома индивидуальные. Однотипных и тем более серийных конфигураций практически нет.
Типовые проекты: o 1ЛГ-600.11: 10 этажей, 3 парадные и 119 квартир;
1ЛГ-600.11, модификация, строящаяся с 1989 года. Единственное отличие от советской версии - лифтовая парадная надстройка в форме трапеции. Оставлены Г-образные окна кухонь. В некоторых домах хозяева квартир изменяли окна своих кухонь, убирая кусок панели над форточкой и тем самым окно кухни становилось прямоугольным, двустворчатым. Серийных конфигураций можно пересчитать по пальцам. Все остальные дома имеют разнообразную форму и этажность. Даже так, что каждая секция может на полпанели отделена от предыдущей, также существуют угловые секции. В домах, построенных после 2000 года стали появляться укороченные секции. В 2002г. были сданы последние дома таково типа.
Типовые проекты: o 1ЛГ-600.11: 6 этажей, 4 парадные и 96 квартир; o 1ЛГ-600.11: 7 этажей, 2 парадные и 56 квартир; o 1ЛГ-600.11: 10 этажей, 2 парадные и 80 квартир;
«600.11, модификация, строящаяся с 1999 года. С начала нового века, серия изменилась, не то, чтобы кардинально, но достаточно сильно. Увеличилась площадь кухонь, комнат и соответственно квартир. Окна кухонь во всех квартирах не имеют форточки - они двустворчатые. Большая часть домов с укороченными секциям. В этой модификации много домов с балконами по обе стороны от парадных, причем в одном доме могут быть как и такие секции, так и обычные, и чаще всего они укороченные. Последний дом серии 600.11 был сдан в 2015 году.
Типовые проекты: o 600.11: 10 этажей и 40 квартир, модифицированные; o 600.11: 5 этажей, 3 парадные и 60 квартир с измененными торцами; o 600.11: 10 этажей, 2 парадные и 79 или 80 квартир с укороченными секциями; o 600.11: 10 этажей, 2 парадные и 80 квартир; o 600.11: 10 этажей, 3 парадные и 119 квартир; o 600.11: 10 этажей, 3 парадные и 119 квартир с измененными торцами; o 600.11: 10+1 этаж, 3 парадные и 119 квартир с измененными торцами; Но форточки и соответственно Г образные окна не ушли в прошлое, и не остались уделом домов с маленькими квартирами. Даже в домах новой эпохи встречаются такие окна кухонь. Хотя, окна в них уже двустворчатые, а форточки выглядят как дополнение к ним. Серийных конфигураций не выявлено.
|





