|
Серия ОД
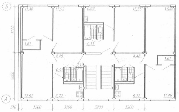
Панельная серия, копия Московской К-7. Строились Обуховским ДСК до 1963 года. Основной костяк застройки - Невский район. Также квартал в Волково и несколько домов присутствуют на Пискаревке и на Гражданке. Материал панелей – тот же керамзитобетон, что и у серии 1-335. По теплопотерям дома серии ОД «конкурируют» только с 1-335. Причем часто проигрывают даже им. Здесь также тесные совмещенные санузлы площадью около 2 кв.м., пятиметровые кухни. Причем толщина перегородок в них всего четыре сантиметра. О сколько-нибудь ощутимой звукоизоляции внутри квартиры (между кухней и комнатами) говорить не приходится. Квартиры 1-, 2- и 3-комнатные; комнаты площадью 11,5–18 кв. м, кухня 6,7 кв. м; потолок 2,5 м, санузел раздельный или совмещенный; материал пола — линолеум. В 2- и 3-комнатных квартирах есть смежные комнаты. Общая площадь 1-комнатной квартиры — 29,7 кв. м, 2-комнатной — 39,9 кв. м, 3-комнатной — 62,3 кв. м. Балконы и лоджии отсутствуют. Эта серия, как ГИ, и 1-335 одна из самых ранних. Кварталы, где находится эти серии подлежат реновации. Существует соответствующая программа "о реновации хрущевок". Характеристики серии ОД: Карта всех домов серии ОД в Санкт-Петербурге и пригородах
Типовые проекты:o ОД-4: 5 этажей, 4 парадные и 60 квартир; o ОД-4: 5 этажей, 4 парадные, 60 квартир с уменьшенными окнами в маленьких комнатах; o ОД-6: 5 этажей, 6 парадных, 90 квартир; o ОД-6: 5 этажей, 6 парадных, 90 квартир с большими, трехстворачтыми окнами во всех комнатах и таким же окном парадной; o ОД: 5 этажей, 8, 10 и 12 парадные, 120, 149 и 178 квартир; o Э4-58: 5 этажей, общежитие; o ОД: 9 этажей, 6 парадных, 126 квартир с магазинами на первых двух этажах и отдельными лифтовыми шахтами; |



